Dance Studio Reception

COMMERCIAL | RECEPTION DESIGN

On brand, high-functioning waiting area

a black and white photo of sound wave. texture and movement
a black and white photo of sound wave. texture and movement
moodboard of wood, neon, purple, black
moodboard of wood, neon, purple, black

Inspiration and Mood Boards

3D Visual

Our clients are Ealing-based dance studio Innovation Dance. With a thriving location on Pitshanger Lane, Emma and Zoe took the plunge to build a new professional dance space in Dickens Yard. We worked with them to come up with a "Step/ Flow" concept, which resulted in a dynamic and fun reception and waiting area that is both on brand and differentiated from competitors. The custom stadium style seating accommodates dancers who might be waiting for a class to start or warming up before auditions. A built-in bar at the window and a sofa near reception provide additional seating arrangements. The Innovation Dance vibrant magenta colour is used around the reception desk area and throughout the entire space.
a drawing of a waiting area with seating and reception desk
a drawing of a waiting area with seating and reception desk

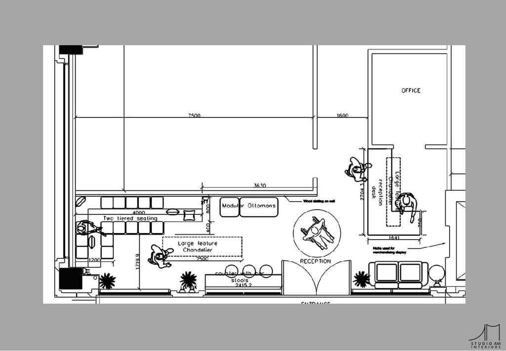
Space Planning

a woman sitting on a couch in a waiting area. stadium bench seats
a woman sitting on a couch in a waiting area. stadium bench seats
LED glow surrounds a reception desk wrapped in high gloss white veneer
LED glow surrounds a reception desk wrapped in high gloss white veneer

After

Bar seats with view from window toward Ealing borough and Dickens Yard plaza
Bar seats with view from window toward Ealing borough and Dickens Yard plaza
Custom stadium seating with grey seat cushions and grey ribbed wall panels. View of Ealing
Custom stadium seating with grey seat cushions and grey ribbed wall panels. View of Ealing