Body & Soul
Commercial | Trauma Informed design
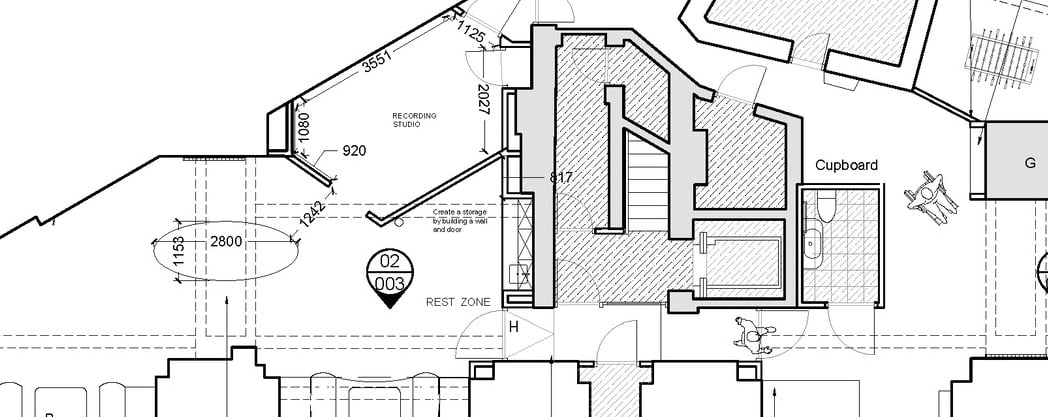
In an early 2021 competition, Body & Soul asked KLC students to provide a design for their basement level in Clerkenwell. Inspired by the care and support that the charity provides to its members, Studio High 5 (comprised of Manisha Agarwal, Caroline Downes, Cara Viverito, Phoebe Reid, and Amy Tsao) produced the winning design. Our concept of Safe Harbour led to a design including sheltered pods, natural materials, and a layout based on a mix of active and restful uses for the space. Studio AM has lead the execution of the Safe Harbour design in 2022/23. Some changes were made due to budget constraints and site specific issues


Safe Harbour


One of the key design elements was the "Pod" to provide the feeling of "cocooning"to the users. The depth of the seating is generous to allow the users to perch their legs up to read comfortably or to use the table to work on a laptop. The seating doubles up as storage as well. Tables in deep bronze (matched with the large conference table) were donated very kindly by Tom Faulkner while the lighting in the pod was contributed by Porta Romana.










